Σελίδες

Κυριακή 11 Δεκεμβρίου 2011

Πάρκο Αναψυχής στην Αγία Πετρούπολη Φλόριντας

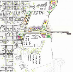
Επιλεγμένο έργο μεταξύ τριών φιναλίστ για την κατασκευή μιας προβλήτας στην Αγία Πετρούπολη (Φλόριντα), το έργο στην προκυμαία, υποβλήθηκε από την design studio BIG αρχιτεκτονική, αποτελείται από τρία μέρη.
Το πάρκο προσφέρει ενοικιάσεις κανό, χώρο για πικνίκ και βοτανικούς κήπους,  Wave - μαρίνα και πισίνα. Και στο κύμα - μια γλυπτική κτιρίου με τη μορφή ενός δακτυλίου στις οποίες θα υπάρχουν εμπορικές επιχειρήσεις, εστιατόρια, μπαρ και θέατρα....


















I DIADROMI

Δεν υπάρχουν σχόλια:

Δημοσίευση σχολίου

Ευχαριστούμε πολύ για την επίσκεψη!

Τα μόνα σχόλια που σβήνω είναι οι ύβρεις.